THE WEEKLY REVIEW | March 21, 2025
- Colliers | Columbus

- Mar 21, 2025
- 2 min read

Keeping up with CRE trends is as easy as 1-2-3 with our weekly piece! The Weekly Review is a new blog series that will be released every Friday. The market is constantly growing and adapting to new ventures and ideas, and our goal is to provide up-to-date information into what is happening in both the Columbus and U.S. markets, as well as the commercial real estate industry as a whole. As stories evolve, the Weekly Review will continue to follow along and update our clients and community.
Certain news links may require site registration or subscription to access the complete article.
1
“A pair of New Albany industrial properties sold for more than $77 million, county records show. The sites at 3210 Horizon Ct. and 3450 Horizon Ct. were sold by New Albany Data Center SPE to CIVF VIII OH. The entity bought the 3210 property for $48.75 million and paid $28.48 million for the 3450 property. The buyer's address returns to Cabot Properties, a Boston-based firm that acquires, develops and operates logistics real estate. The company's portfolio includes 1,681 buildings measuring 231 million square feet, according to its website. It holds $15.6 billion in assets in 44 markets in the U.S., Europe and Asia.”
2
“BBI Brands has moved into its new office at Astor Park. Located at 600 W. Nationwide Blvd. in downtown Columbus, the building serves as the headquarters for BBI Brands, which includes BBI Logistics, BBI Transportation and BBI Real Estate. With the move from 80 E. Rich St., the company more than doubled its office footprint. BBI currently occupies the upper two floors of the five-story building, with room to grow into the remaining floors. In total, it can hold up to 1,000 employees.”
3
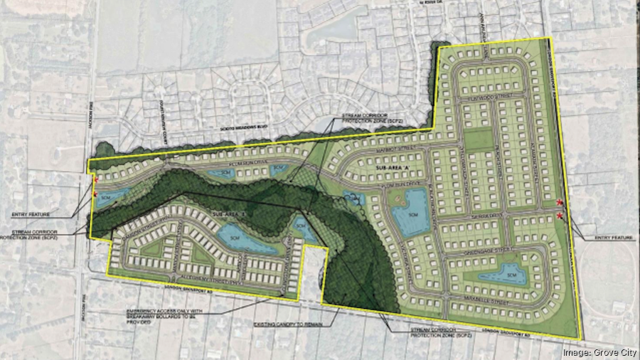
“A Texas-based developer wants to build more than 300 new single-family homes in Grove City. Grove City Council Monday approved Forestar Group Inc.’s preliminary plans that show 349 single-family homes on 144 acres at the northeast corner of London Groveport Road and Jackson Pike. The plans break the site into two subareas separated by a naturally occurring stream and woodlands, according to city documents. The area to the north and east would have 266 homes, including one-story homes at a minimum of 1,500 square feet and two-story homes with at least 2,000 square feet.”






Comments